本文
| 日時 | イベント名 |
|---|---|
|
4月14日(火曜日)14時00分~16時00分 |
誰でもカフェ |
| 4月15日(水曜日)13時30分 ~15時30分 | モルック大会 |
| 4月21日(火曜日)14時00分 ~16時00分 | メンズカフェ・散歩道 |
| 4月22日(水曜日)10時00分 ~12時00分 | ウォーキング講座 |
平日 月・金 16時00分~20時00分
土日祝日 9時00分~17時00分
| 日(Sun) | 月(Mon) | 火(Tue) | 水(Wed) | 木(Thu) | 金(Fri) | 土(Sat) |
|---|---|---|---|---|---|---|
|
|
|
|
1 × |
2 × |
3 〇 |
4 〇 |
|
5 〇 |
6 〇
|
7 × |
8 × |
9 × |
10 〇 |
11 〇 |
|
12 〇 |
13 〇 |
14 × |
15 × |
16 × |
17 〇 |
18 〇 |
|
19 〇 |
20 〇 |
21 × |
22 × |
23 × |
24 〇 |
25 〇 |
|
26 〇 |
27 〇 |
28 × |
29 × |
30 × |
庄内地区公民館
本地区は、中心市街地の南に接し、本市南部地区と中心部等を結ぶ幹線道路が取り囲む中に位置しています。中心市街地に近い立地でありながら、まとまった純農耕地が残っていましたが、現在は土地区画整理が実施されて、新市街地が形成されています。
庄内地区公民館は、平成18年4月に開館した複合体育施設「ゆめひろば庄内」の1階にあり、館内には、大会議室、講座室、講義室、視聴覚室、料理実習室、和・洋室、工作室を備えています。なお、その他の施設としては、2階がトレーニングジム、3・4階は庄内体育館、地下1・2階は屋内プールとなっています。
〒390-0827
長野県松本市出川1丁目5番9号
電話 0263-24-1811
Fax 0263-24-1812

周辺図
庄内地区公民館の詳細な周辺地図へのリンクです。(Googleマップ)

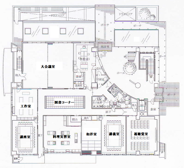
ゆめひろば庄内1階 庄内地区公民館 館内図面
【面積】145.92平方メートル
【収容人数】定員90名
机30台
椅子90脚
【設備】
カーペット床、アップライトピアノ、スクリーン、大鏡、会議用音響設備、壁ホワイトボード
【面積】59.84平方メートル
【収容人数】定員30名
机10台
椅子30脚
【設備】一部カーペット敷き、壁ホワイトボード
【面積】49.48平方メートル
【収容人数】定員30名
机10台
イス30脚
【設備】壁ホワイトボード
【面積】43.69平方メートル
座卓10台
座布団40枚
敷き畳9枚
【設備】カーペット床
【面積】78.42平方メートル
【収容人数】定員45名
机15台
椅子45脚
【設備】可動式スクリーン、壁ホワイトボード、テレビ、DVDプレーヤー
【面積】49.48平方メートル
【収容人数】定員17名
作業台5台
丸椅子17脚
【設備】壁ホワイトボード
【面積】76.90平方メートル
【収容人数】20名
テーブル2台
丸椅子20脚
【設備】リノリウム床、調理台5(ガス式4、IH式1)、壁ホワイトボード、冷蔵庫、炊飯器、電子レンジ、その他(鍋、フライパン、包丁、食器など)
【面積】29.28平方メートル
【設備】カーペット床、図書の貸し出し可、フリースペースとしてお使いください
休館日 第2、第4水曜日、年末年始(12月29日~1月3日)
開館時間 午前9時~午後9時45分(午後10時閉館)
利用申請は、ご利用を希望される公民館でお受けします。
公民館では、市民のみなさまの幅広い学習や活動を支援するため、
初めて利用される方へ、利用目的や活動内容などをお聞きし、
施設の詳細や予約方法などをご案内します。
事前に、ご利用を希望される公民館へお問い合わせください。
公民館は社会教育法や松本市公民館の理念に基づく「社会教育施設」です。
住民の皆さま主体による学習活動や交流を深めることを目的とする団体であれば、公民館のお部屋をお貸しすることができ、どなたでもご利用いただけます。(例:ママ友が集まって茶話会をして交流を深めたり、その流れで育児の勉強をしたくなり、講師をお招きしてお話を聞く等)
公共施設案内・予約システム<外部リンク>
公民館各部屋の空き状況の確認ができます。
登録団体の皆さんは、予約システムでインターネット予約いただけます。
バス:タウンスニーカー南コース(時刻表)、並柳団地線(時刻表)
電車:JR南松本駅から徒歩約20分、JR松本駅から徒歩約30分
自動車:中央自動車道 松本インターから約10分程度
駐車場:最大120台(敷地内68台、第2駐車場52台)